Volver a proyectos
Premio 2008

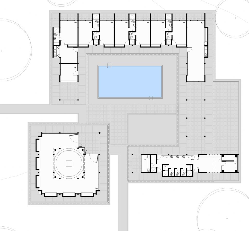
Alojamientos Sede Amazonia UN, Leticia

Santiago Moreno González

Alojamientos Sede Amazonia UN, Leticia

Alojamientos Sede Amazonia UN. Leticia, Amazonas. XXI Bienal de Arquitectura.