Volver a proyectos
Premio 2012

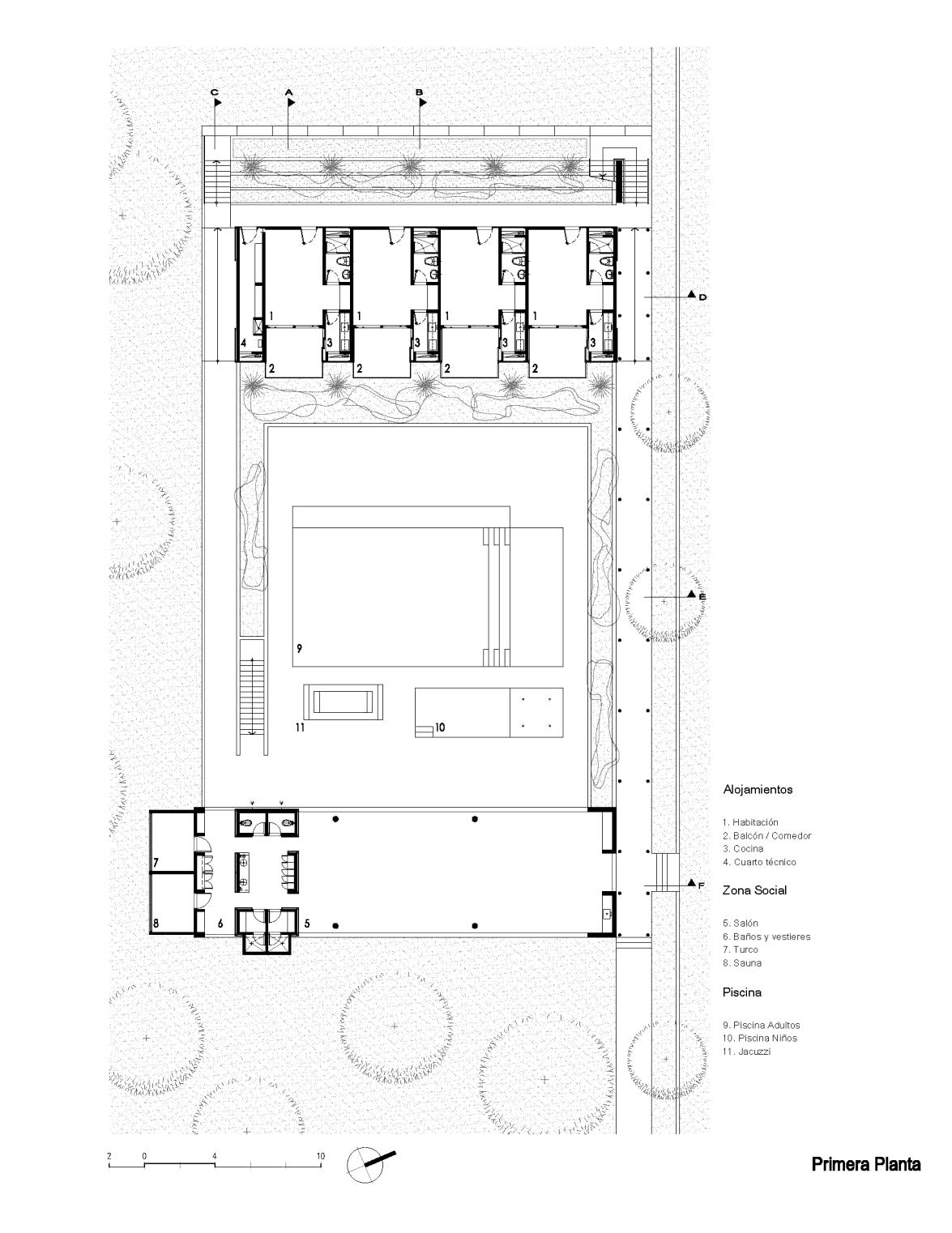
Sede Recreativa FODUN, Santa Fe de Antioquia

Santiago Moreno González

Sede Recreativa FODUN, Santa Fe de Antioquia

Sede Recreativa FODUN. Santa Fe de Antioquia. XXIII Bienal de Arquitectura.